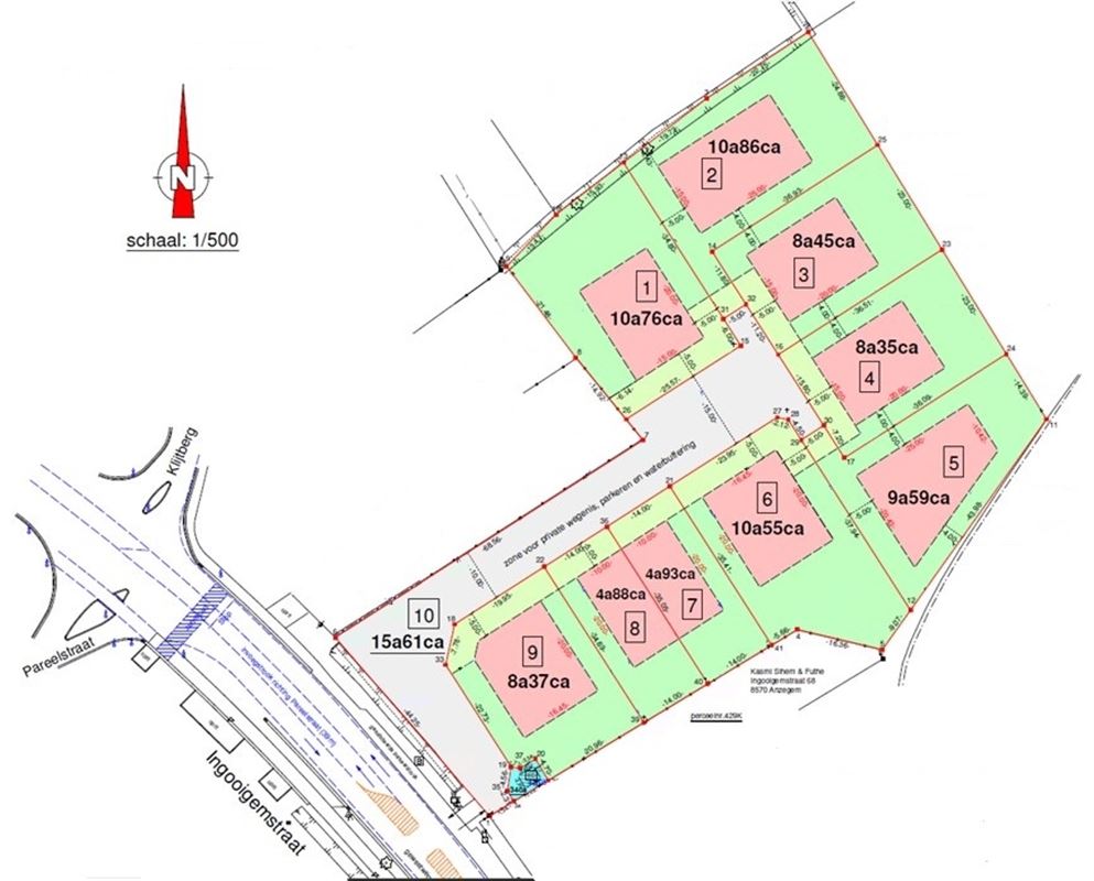
Verschillende bouwgronden 835m²-1086m² op nieuwe verkaveling

  • €200.880
Ingooigemstraat 8570 INGOOIGEM
  • 1781
  • Eigendoms-ID
  • Grond
  • Eigendomstype
  • 0
  • Slaapkamer
  • 0
  • Badkamer
  • 0
  • Garage
Te koop Actief
Verschillende bouwgronden 835m²-1086m² op nieuwe verkaveling
Ingooigemstraat 8570 INGOOIGEM
  • €200.880

Beschrijving



Verschillende bouwgronden met oppervlaktes tussen 835m² en 1086m². De gronden zijn te vinden in een nieuwe verkaveling in Ingooigem met een vlotte bereikbaarheid.

Prijzen variëren van €200 880 tot €274 300.

Bel Immo Van Parijs voor meer informatie: 056 29 30 30.

Nog verschillende bouwgronden te koop in deze verkaverling. Contacteer ons gerust voor meer info.

  • Adres Ingooigemstraat
  • Stad INGOOIGEM
  • Postcode 8570
  • Land België

Details

Updated on april 18, 2026 at 10:00 am
  • Eigendoms-ID: 1781
  • Prijs: €200.880
  • Grondoppervlakte: 835 m²
  • Slaapkamer: 0
  • Badkamer: 0
  • Garage: 0
  • Eigendomstype: Grond
  • Eigendomsstatus: Te koop
  • Voorkooprecht: Nog niet aangevraagd
  • Bouwvergunning verkregen: Nog niet aangevraagd
  • Dagvaarding uitgebracht: Nog niet aangevraagd
  • Verkavelingsvergunning: Nog niet aangevraagd
  • Bestemming: 1001
  • Bebouwing: Niet meegedeeld
  • Staat: Niet meegedeeld
  • Type dak: Niet meegedeeld
  • Type verwarming: Niet meegedeeld
  • Verwarming: Niet meegedeeld
  • Keuken: Niet meegedeeld
  • Grondaandeel: 200880

Compare listings

Compare
admin
  • admin